5 Bedroom
3 Bathroom
Building: Raised Bungalow
Fireplace
Cooling: Central Air Conditioning, Air Exchanger
Heating: Forced Air, Natural Gas
$999,900
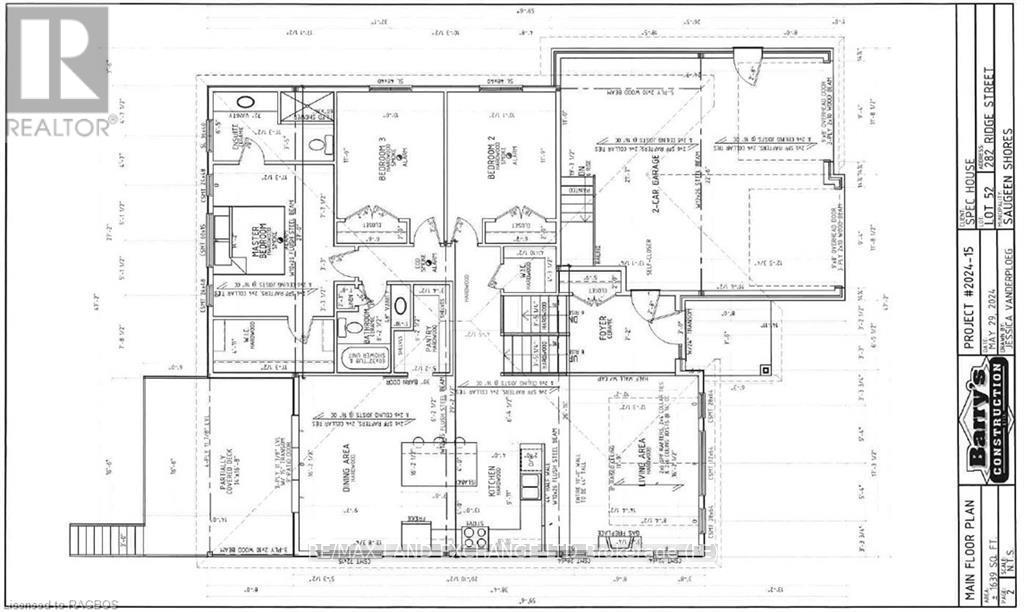
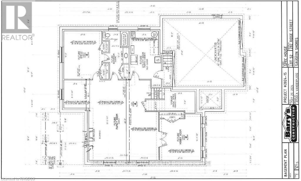
The framing is complete for this 1639 sqft home with 3 bedrooms and 2 full baths on the main floor; featuring hardwood and ceramic flooring, walk-in kitchen pantry, tiled shower in the ensuite bath, partially covered rear deck 14 x 16'8, 9 foot ceilings and more. The basement has a separate entrance from the 2 car garage and features a large family room, 2 more bedrooms and full bath. Additional features included sodded yard, concrete drive, gas fireplace, central air, and interior colour selections for those that act early. HST is included in the asking price provided the Buyer qualifies for the rebate and assigns it to the Builder on closing (id:48040)
Property Details
|
MLS® Number
|
X11822711 |
|
Property Type
|
Single Family |
|
Community Name
|
Saugeen Shores |
|
Equipment Type
|
Water Heater - Tankless |
|
Features
|
Flat Site, Sump Pump |
|
Parking Space Total
|
4 |
|
Rental Equipment Type
|
Water Heater - Tankless |
|
Structure
|
Deck |
Building
|
Bathroom Total
|
3 |
|
Bedrooms Above Ground
|
3 |
|
Bedrooms Below Ground
|
2 |
|
Bedrooms Total
|
5 |
|
Appliances
|
Water Heater - Tankless, Garage Door Opener |
|
Architectural Style
|
Raised Bungalow |
|
Basement Features
|
Separate Entrance, Walk-up |
|
Basement Type
|
N/a |
|
Construction Style Attachment
|
Detached |
|
Cooling Type
|
Central Air Conditioning, Air Exchanger |
|
Exterior Finish
|
Stone, Vinyl Siding |
|
Fireplace Present
|
Yes |
|
Fireplace Total
|
1 |
|
Foundation Type
|
Poured Concrete |
|
Heating Fuel
|
Natural Gas |
|
Heating Type
|
Forced Air |
|
Stories Total
|
1 |
|
Type
|
House |
|
Utility Water
|
Municipal Water |
Parking
Land
|
Access Type
|
Year-round Access |
|
Acreage
|
No |
|
Sewer
|
Sanitary Sewer |
|
Size Depth
|
127 Ft ,3 In |
|
Size Frontage
|
56 Ft ,3 In |
|
Size Irregular
|
56.26 X 127.32 Ft |
|
Size Total Text
|
56.26 X 127.32 Ft|under 1/2 Acre |
|
Zoning Description
|
R1-84 |
Rooms
| Level |
Type |
Length |
Width |
Dimensions |
|
Basement |
Family Room |
8.1 m |
6.76 m |
8.1 m x 6.76 m |
|
Basement |
Family Room |
8.1 m |
6.76 m |
8.1 m x 6.76 m |
|
Basement |
Bedroom |
4.01 m |
4.44 m |
4.01 m x 4.44 m |
|
Basement |
Bedroom |
4.01 m |
4.44 m |
4.01 m x 4.44 m |
|
Basement |
Bedroom |
3.71 m |
4.65 m |
3.71 m x 4.65 m |
|
Basement |
Bedroom |
3.71 m |
4.65 m |
3.71 m x 4.65 m |
|
Basement |
Bathroom |
|
|
Measurements not available |
|
Basement |
Bathroom |
|
|
Measurements not available |
|
Basement |
Laundry Room |
2.79 m |
4.65 m |
2.79 m x 4.65 m |
|
Basement |
Laundry Room |
2.79 m |
4.65 m |
2.79 m x 4.65 m |
|
Main Level |
Foyer |
2.18 m |
2.74 m |
2.18 m x 2.74 m |
|
Main Level |
Foyer |
2.18 m |
2.74 m |
2.18 m x 2.74 m |
|
Main Level |
Living Room |
|
|
Measurements not available |
|
Main Level |
Living Room |
|
|
Measurements not available |
|
Main Level |
Kitchen |
|
|
Measurements not available |
|
Main Level |
Kitchen |
|
|
Measurements not available |
|
Main Level |
Dining Room |
2.92 m |
4.93 m |
2.92 m x 4.93 m |
|
Main Level |
Dining Room |
2.92 m |
4.93 m |
2.92 m x 4.93 m |
|
Main Level |
Primary Bedroom |
|
|
Measurements not available |
|
Main Level |
Primary Bedroom |
|
|
Measurements not available |
|
Main Level |
Other |
|
|
Measurements not available |
|
Main Level |
Other |
|
|
Measurements not available |
|
Main Level |
Bedroom |
|
|
Measurements not available |
|
Main Level |
Bedroom |
|
|
Measurements not available |
|
Main Level |
Bedroom |
|
|
Measurements not available |
|
Main Level |
Bedroom |
|
|
Measurements not available |
|
Main Level |
Bathroom |
|
|
Measurements not available |
|
Main Level |
Bathroom |
|
|
Measurements not available |
Utilities
|
Cable
|
Installed |
|
Wireless
|
Available |
https://www.realtor.ca/real-estate/27661079/282-ridge-street-saugeen-shores-saugeen-shores